基本参数
- 产地浙江
- 品牌
- 产品型号
- 产品操作
- 产品应用范围
- 产品材料等级
- 产品表面处理
- 品牌浙江兆宇
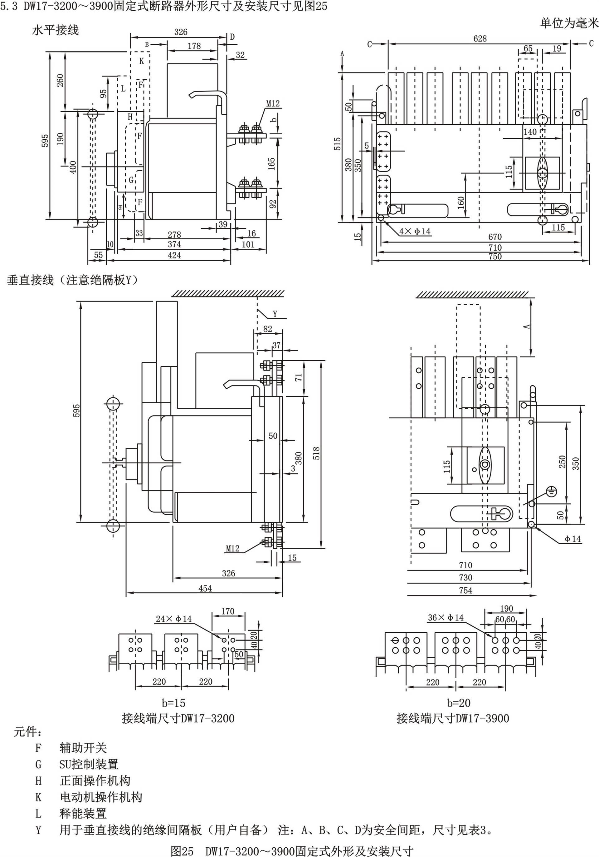
- 型号DW17-2500A
- 极数3P
- 灭弧介质空气式
- 操作方式手动操作
- 安装方式固定式
- 速度普通型
- 结构万能式
- 加工定制是
- 机械寿命1(万次)
- 脱扣器电流2500A
- 额定频率50HZ
- 额定绝缘电压690V
- 产品认证CCC
- 产地浙江
产品简介:
产品详情:公司简介
浙江兆宇电气有限公司专门从事塑料外壳,通用,刀开关等产品的生产和供应。低压断路器。我们拥有精细而完整的生产设备,测试设备和测试设备,并确立了具备我们特点的质量保证体系严苛按照ISO9001quality确保系统的要求,以保证产品的生产过程和公司的各种质量管理任务全然处于质量控制状况。
该公司在低压断路器产品开发软件和硬件工程师方面拥有多年经验,拥有一套严苛管理的生产程序以及一群敢于创新的职工团队,为公司的发展提供了有力的保证。伎俩,健全的企业管理和灵巧的经营机制,使企业在生产管理和信息化的融合中不停壮大。竞争的基础是成功的产品和不错的售后服务。因此,公司专注于产品技术创新,生产高低压断路器,并掌握了此类产品的基本和关键技术,其技术程度与国际先进水准维持一致。
兆宇电气有限公司firm深信,技术无止境,探讨无止境,创新无止境。我们将加倍尽力,以提供更多更好的产品,更好的技术和更好的服务。
浙江兆宇ME万能式断路器DW17-2500A
适用范围
DW17系列万能式断路器(以下称作断路器)适用于额定工作电压为ac至400v和690v,额定频率为50hz,额定电流为630a至4000a的配电网络。它用以分配电能,保护电路和电力设备(例如发电机,整流器等)免于过载,短路和欠压等故障的影响,还可以连通到起动马达,并有着选择性保护功用。
基本机能:经典型号ME断路器,主要用以过载,欠压,短路等。



